2. 岭南现代农业科学与技术广东省实验室 茂名分中心,广东 茂名 525000;
3. 广州越秀农牧科技有限公司, 广东 广州 510800
2. Maoming Branch, Guangdong Laboratory for Lingnan Modern Agriculture, Maoming 525000, China;
3. Guangzhou Yuexiu Agriculture and Animal Husbandry Technology Co., Ltd., Guangzhou 510800, China
随着畜禽养殖向集约化、规模化方向发展,高密度养殖舍是氨气、臭气和颗粒物排放的主要贡献者[1-2]。对于畜禽舍内氨气、臭气和颗粒物的控制,通常采用机械通风方式[3]将其排放至周边环境中。由于颗粒物表面会吸附大量的有害气体[4-5]、细菌[6]及微生物[7-8]等,无组织无控制地排放会对大气环境与周边人员的健康造成严重破坏[9-10]。为尽可能降低空气环境中颗粒物浓度,世界卫生组织颁布了空气质量标准,限制包括畜禽场在内可吸入颗粒物(PM10、PM2.5)的排放[11-12]。目前,集约化畜禽舍废气处理的主要措施包括源头减排、过程控制及末端减排[13],其中,末端减排以净化效率高、无二次污染及净化过程可实现自动化控制等优势,符合国内外集约化畜禽养殖应用需求[14]。国外学者针对末端减排技术的研究主要集中在化学法[15]和生物法[16]。Han等[17]的研究结果表明,生物过滤器可以过滤颗粒物,但运行条件较为苛刻,易导致滤床堵塞。Manuzon等[18]和Jafari等[19]提出由酸洗与水洗构成复合喷淋法,可净化颗粒物与气态污染物,对畜禽养殖末端废气净化具有较大的适应潜力;净化系统效率受喷嘴类型、喷嘴操作压力、喷嘴覆盖范围等影响。现有的畜禽末端废气净化性能研究多集中于气态污染物净化方面[13, 20]。Melse等[21]采用滤膜称重法对喷淋净化系统PM10净化性能进行研究,但采样时由于部分颗粒物被困在预分离器中,导致颗粒物净化效率偏差大;且滤膜称重周期太长,无法实时参与到控制系统中。国内针对畜禽养殖废气净化装置的研究起步较晚[22-24],针对颗粒物污染方面的研究多集中于颗粒物的污染特征与影响因素[25-27],而对颗粒物净化效果的研究较少。
由于颗粒物净化性能研究面临更具挑战的测试过程控制和数据采集,鲜有研究者对废气净化技术的颗粒物净化效率和参数调控进行系统研究。为系统地研究废气末端净化技术中颗粒物净化性能,本研究基于自主搭建的卧式水喷淋系统颗粒物净化效率试验平台,以通风风速、喷嘴压力、喷嘴额定孔径和喷嘴雾化角度为控制因素,研究关键调控参数对颗粒物净化效果的影响规律,并运用参数优化模型获得最优调控参数组合,对比最优参数组合与其他参数组合下的颗粒物净化性能,以期为畜禽舍末端废气处理系统颗粒物净化设备的设计和运行参数调控提供参考。
1 试验平台与方案 1.1 试验平台如图1所示,水喷淋法颗粒物净化机理是净化单元内的填料在喷淋系统作用下,其表面及通道中产生液滴和液膜,液滴和液膜与通过多孔结构净化单元的固体颗粒发生相互拦截、扩散、碰撞及沉降等物理过程,从而有效地将粉尘颗粒从废气中去除。最终,固体颗粒被填料中的溶液带入洗涤池。
|
图 1 颗粒物净化机理 Fig. 1 Purification mechanism of particulate matter |
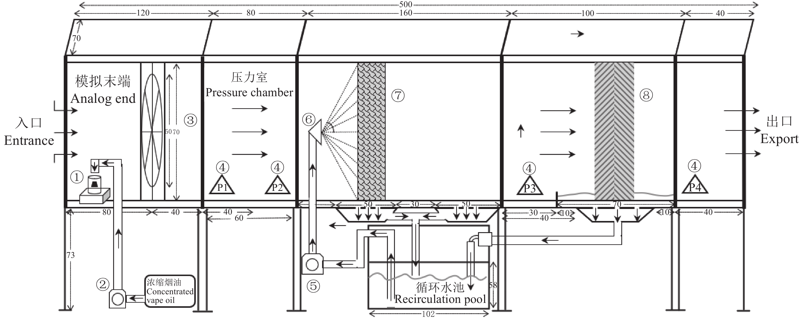
本研究利用自主搭建的卧式水喷淋系统颗粒物净化效率试验平台,对模拟机械通风畜禽舍末端排放的颗粒物进行净化处理。该试验平台(图2)主要包括固体颗粒物发生装置、控制单元、通风装置、喷淋装置、多孔结构净化单元及数据采集装置等。固体颗粒物发生装置由集热式恒温磁力搅拌器和补给装置组成,烟油经高温加热产生颗粒物进入废气净化系统;控制单元检测到颗粒物浓度超标时,自动开启废气处理系统;通风装置由变频器和负压风机组成,通过变频器调节试验平台风量;喷淋装置由水泵、压力表、变频器和螺旋喷嘴组成,通过变频器调节螺旋喷嘴压力,实现循环喷淋且可完全覆盖填料;多孔结构净化单元由填料[28]和除雾器[29]组成,分别实现对废气颗粒物的吸收和水雾颗粒的去除;数据采集装置由空气检测仪(测量范围0~1 000 μm、型号BH-1)、数字微压计、叶轮风速仪(测量范围0~30 m/s、型号Testo405i)、数显压力表(测量范围−100~500 kPa、型号HC-YS100)和功率计量器组成,空气检测仪记录试验平台内净化前、后颗粒物浓度。
|
图 2 畜禽养殖末端颗粒物净化试验平台示意图 Fig. 2 Diagram of test platform for particulate matter purification in livestock and poultry houses ①固体颗粒物发生装置,②补给装置,③变频风机,④颗粒物传感器,⑤循环水泵,⑥螺旋喷嘴,⑦填料,⑧除雾器;单位:cm ①Solid particulate generation device, ②Replenishment device, ③Inverter fan, ④Particle sensor, ⑤Circulating water pump, ⑥Screw nozzle, ⑦Packing, ⑧Mist eliminator; Unit: cm |
为验证畜禽养殖末端颗粒物净化平台的有效性,开展平台腔体内颗粒物浓度均匀化测试。测试试验中,风机频率保持20 Hz,喷淋装置不工作,净化单元内填充单级填料及除雾器;在不同位置设置多个颗粒物浓度传感器,用于监测不同净化处理阶段的颗粒物浓度,颗粒物浓度传感器摆放位置如图2所示。风机运行时,考虑净化单元内废气湍流对颗粒物浓度波动产生的影响,对比分析试验平台腔体内不同位置的PM2.5浓度数据。
1.3 正交试验设计和试验验证本试验通过卧式水喷淋系统颗粒物净化效率试验平台,分析净化处理过程中关键调控参数对颗粒物净化性能的影响。已有相关研究分析了通风风速和喷嘴压力对废气中气态污染物净化效率的影响[22-24],但未分析其对颗粒物净化效率的影响。有研究工作指出,使用大孔径喷嘴时会增加系统能耗,且洗涤液与畜禽养殖废气接触时间较短,净化效率低下,而使用小孔径喷嘴则易发生堵塞[18-19]。因此,本研究选择通风风速(V)、喷嘴压力(P)、喷嘴额定孔径(D)和喷嘴雾化角度(θ)为控制因素,设计四因素三水平正交试验,正交试验的控制因素和水平如表1所示。采用极差分析与方差分析方法,探究水喷淋净化系统在不同调控参数组合下对颗粒物净化效率的影响;正交试验结果导入SPSS软件[30],并运用参数优化模型获得最优调控参数组合。通过试验验证,对比最优参数组合与其他参数组合下的颗粒物净化性能。
|
|
表 1 正交试验的因素和水平表 Table 1 Table of factor and level of orthogonal test |
参照文献[31]模拟畜禽舍末端颗粒物排放现状。将试验平台入口处PM2.5质量浓度控制在0.15~0.30 mg/m3,PM10质量浓度控制在0.25~0.65 mg/m3;每组均设置空白试验,记录无固体颗粒物配制系统且正常喷淋前、后颗粒物浓度,尽可能降低水雾颗粒对固体颗粒物浓度数据采集的干扰。每次试验15 min,重复3次,各组间隔30 min。
试验完成后,计算不同正交试验组合下颗粒物净化效率,计算公式如下:
| $ \eta \text=\dfrac{{\rho}_{\text{in}}-{\rho}_{\text{out}}}{{\rho}_{\text{out}}}\times 100{\text{%}} \text{,} $ |
式中,
根据颗粒物团聚理论,废气流经净化单元后风速下降,有助于颗粒物凝结并团聚。由表2可知,不同参数组合下净化效率存在较明显的差距,其中,第1组与第7组出现净化后颗粒物浓度高于净化前颗粒物浓度,分析其原因:一方面,此参数组合下,净化效果不佳,使得颗粒物浓度降幅较小;另一方面,由于废气气流中出现大量水雾,造成颗粒物浓度增高[32-34]。
|
|
表 2 正交试验设计和结果1) Table 2 Orthogonal test design and results |
试验平台腔体内不同位置的PM2.5质量浓度分布结果见图3。由图3可知,风机末端(1号监测点)和压力室末端(2号监测点)的PM2.5浓度波动范围趋近一致。除雾器前端(3号监测点)和除雾器末端(4号监测点)的PM2.5浓度显著降低,这可能是因为气流流经填料及除雾器内部时,颗粒物与多孔结构表面发生相互拦截、扩散、碰撞及沉降等过程,从而被多孔结构净化单元捕获。测试结果表明,腔体内颗粒物浓度分布均匀,密闭性较好,满足试验研究条件。
|
图 3 试验平台腔体不同监测点的PM2.5质量浓度变化 Fig. 3 Changes of PM2.5 concentration at different monitoring points in the chamber of test platform |
正交试验结果的极差分析(表3)可知,各因素对PM2.5净化效率影响的主次关系依次为喷嘴压力(P)、通风风速(V)、喷嘴额定孔径(D)、喷嘴雾化角度(θ);各因素对PM10净化效率影响的主次关系依次为喷嘴压力、喷嘴额定孔径、喷嘴雾化角度、通风风速。说明喷嘴压力对PM2.5与PM10的净化效果均起最主要作用。
|
|
表 3 正交试验极差分析1) Table 3 Range analysis of orthogonal test |
基于PM2.5净化效率测试结果对主要影响因素进行方差分析。由表4可知,通风风速(V)、喷嘴压力(P)、喷嘴额定孔径(D)及喷嘴雾化角度(θ)都对PM2.5净化效率具有极显著的影响。其中,喷嘴压力的影响是最显著的,其次是通风风速,然后是喷嘴额定孔径,最后是喷嘴雾化角度。
|
|
表 4 PM2.5净化因素方差分析表 Table 4 Variance analysis of PM2.5 purification factors |
由表5的多重比较可知,通风风速的水平1最好,喷嘴压力的水平2最好,喷嘴额定孔径的水平2最好,喷嘴雾化角度的水平2最好,故V1P2D2θ2为最优组合,即当通风风速为1.0 m/s、喷嘴压力为45 kPa、喷嘴额定孔径为11.1 mm、喷嘴雾化角度为120°时,PM2.5净化效率最高,为41.5%。
|
|
表 5 各因素对PM2.5净化影响的Duncan’s多重比较 Table 5 Duncan’s multiple comparison of the influence of different factors on PM2.5 purification |
基于PM10净化效率测试结果,对主要影响因素进行方差分析。由表6可知,通风风速(V)、喷嘴压力(P)、喷嘴额定孔径(D)及喷嘴雾化角度(θ)都对PM10净化效率具有极显著的影响。其中,喷嘴压力的影响是最显著的,其次是喷嘴额定孔径,然后是喷嘴雾化角度,最后是通风风速。
|
|
表 6 PM10净化因素方差分析表1) Table 6 Variance analysis of PM10 purification factors |
由表7的多重比较可知,通风风速的水平2最好,喷嘴压力的水平3最好,喷嘴额定孔径的水平2最好,喷嘴雾化角度的水平2最好,故V2P3D2θ2为最优组合,即当通风风速为1.5 m/s、喷嘴压力为60 kPa、喷嘴额定孔径为11.1 mm,喷嘴雾化角度为120°时,PM10净化效率最高,而该组合不在正交试验表2中,需要开展验证试验。
|
|
表 7 各因素对PM10净化影响的Duncan’s多重比较 Table 7 Duncan’s multiple comparison of the influence of different factors on PM10 purification |
将表2的正交试验结果导入SPSS软件,经方差分析可得,PM2.5和PM10净化效率的最优参数组合分别为V1P2D2θ2和V2P3D2θ2。而从表2正交试验方案中可以得出,获得的PM10净化最优参数组合V2P3D2θ2不在正交试验方案中。
为验证PM10净化最优参数组合V2P3D2θ2是合理可信的,本研究开展了验证试验,结果如图4所示。由图4可以看出,与正交试验方案中最优组合V1P2D2θ2相比,组合V2P3D2θ2的PM10净化效率提高了8.5%、PM2.5净化效率降低了0.4%。
|
图 4 不同参数组合试验结果对比 Fig. 4 Comparison of the experimental results of different parameter combinations |
本文基于带有多孔结构净化单元的畜禽养殖末端卧式水喷淋净化系统,针对系统中主要调控参数对颗粒物净化效果的影响进行探究,并对该净化系统的调控参数组合进行优化选择。通过正交试验结果分析可知:通风风速(V)、喷嘴压力(P)、喷嘴额定孔径(D)及喷嘴雾化角度(θ)均对颗粒物净化具有极显著的影响;其中,各因素对PM2.5净化效率影响的主次关系依次为喷嘴压力>通风风速>喷嘴额定孔径>喷嘴雾化角度;各因素对PM10净化效率影响的主次关系依次为喷嘴压力>喷嘴额定孔径>喷嘴雾化角度>通风风速。
在集约化畜禽舍中,PM10浓度远高于PM2.5浓度。PM10净化最优参数组合为V2P3D2θ2,即通风风速为1.5 m/s、喷嘴压力为60 kPa、喷嘴额定孔径为11.1 mm、喷嘴雾化角度为120°。此时,PM10净化效率为40.4%、PM2.5净化效率为41.1%。当集约化畜禽舍中颗粒物整体浓度较低时,V1P2D2θ2也可作为试验台架调控参数的备选组合。
| [1] |
郭丽, 王春, 马淑丽, 等. 机械通风式笼养鸡舍内外颗粒物特征与影响因素分析[J]. 农业机械学报, 2018, 49(1): 276-282. DOI:10.6041/j.issn.1000-1298.2018.01.034 ( 0) |
| [2] |
戴鹏远, 沈丹, 唐倩, 等. 畜禽养殖场颗粒物污染特征及其危害呼吸道健康的研究进展[J]. 中国农业科学, 2018, 51(16): 3214-3225. DOI:10.3864/j.issn.0578-1752.2018.16.017 ( 0) |
| [3] |
WINKEL A, MOSQUERA J, KOERKAMP P W G G, et al. Emissions of particulate matter from animal houses in the Netherlands[J]. Atmospheric Environment, 2015, 111: 202-212. DOI:10.1016/j.atmosenv.2015.03.047 ( 0) |
| [4] |
SANTONJA G G, GEORGITZIKIS K, SCALET B M, et al. Best available techniques (BAT) reference document for the intensive rearing of poultry or pigs: EUR 28674 EN[R]. Brussels: European Commission, 2017.
( 0) |
| [5] |
吴胜, 沈丹, 唐倩, 等. 规模化半封闭式猪场舍内颗粒物、氨气和二氧化碳分布规律[J]. 畜牧与兽医, 2018, 50(3): 30-38. ( 0) |
| [6] |
PU S, PENG S, ZHU J, et al. Characteristics of PM2.5 and its correlation with feed, manure and NH3 in a pig-fattening house
[J]. Toxics, 2022, 10(145): 1-17. DOI:10.3390/toxics10030145 ( 0) |
| [7] |
SHEN D, WU S, LI Z, et al. Distribution and physicochemical properties of particulate matter in swine confinement barns[J]. Environmental Pollution, 2019, 250: 746-753. DOI:10.1016/j.envpol.2019.04.086 ( 0) |
| [8] |
KWON K, LEE I, HA T. Identification of key factors for dust generation in a nursery pig house and evaluation of dust reduction efficiency using a CFD technique[J]. Biosystems Engineering, 2016, 151: 28-52. DOI:10.1016/j.biosystemseng.2016.08.020 ( 0) |
| [9] |
CONTI C, TULLO E, BACENETTI J, et al. Evaluation of a wet acid scrubber and dry filter abatement technologies in pig barns by dynamic olfactometry[J]. Applied Sciences, 2021, 11(7): 3219. DOI:10.3390/app11073219 ( 0) |
| [10] |
GUO L, ZHAO B, JIA Y, et al. Mitigation strategies of air pollutants for mechanical ventilated livestock and poultry housing: A review[J]. Atmosphere, 2022, 13(3): 452. DOI:10.3390/atmos13030452 ( 0) |
| [11] |
UNION P. Directive 2008/50/EC of the European Parliament and of the Council of 21 May 2008 on ambient air quality and cleaner air for Europe[J]. Official Journal of the European Union, 2008, 51: 1-44. ( 0) |
| [12] |
World Health Organization. Air quality guidelines: Global update 2005: Particulate matter, ozone, nitrogen dioxide, and sulfur dioxide[M]. Geneva: Switzerland World Health Organization, 2006.
( 0) |
| [13] |
WANG Y C, HAN M F, JIA T P, et al. Emissions, measurement, and control of odor in livestock farms: A review[J]. Science of the Total Environment, 2021, 776: 145735. DOI:10.1016/j.scitotenv.2021.145735 ( 0) |
| [14] |
CONTI C, COSTANTINI M, FUSI A, et al. Environmental impact of pig production affected by wet acid scrubber as mitigation technology[J]. Sustainable Production and Consumption, 2021, 28: 580-590. DOI:10.1016/j.spc.2021.06.024 ( 0) |
| [15] |
COSTANTINI M, BACENETTI J, COPPOLA G, et al. Improvement of human health and environmental costs in the European Union by air scrubbers in intensive pig farming[J]. Journal of Cleaner Production, 2020, 275: 124007. DOI:10.1016/j.jclepro.2020.124007 ( 0) |
| [16] |
PONGKUA W, THIRAVETYAN P, DUMONT E. New tool for the determination of the nitrogen accumulation rate in the washing liquid of a biotrickling filter treating ammonia emissions[J]. Chemical Engineering Journal, 2020, 397: 125399. DOI:10.1016/j.cej.2020.125399 ( 0) |
| [17] |
HAN M F, WANG C, LIU H. Comparison of physical technologies for biomass control in biofilters treating gaseous toluene[J]. Journal of the Air & Waste Management Association, 2018, 68(10): 1118-1125. ( 0) |
| [18] |
MANUZON R B, ZHAO L Y, KEENER H M, et al. A prototype acid spray scrubber for absorbing ammonia emissions from exhaust fans of animal buildings[J]. Transactions of the ASABE, 2007, 50(4): 1395-1407. DOI:10.13031/2013.23628 ( 0) |
| [19] |
JAFARI M J, MATIN A H, RAHMATI A, et al. Experimental optimization of a spray tower for ammonia removal[J]. Atmospheric Pollution Research, 2018, 9(4): 783-790. DOI:10.1016/j.apr.2018.01.014 ( 0) |
| [20] |
李保明, 王阳, 郑炜超, 等. 畜禽养殖智能装备与信息化技术研究进展[J]. 华南农业大学学报, 2021, 42(6): 18-26. ( 0) |
| [21] |
MELSE R W, HOFSCHREUDER P, OGINK N W M. Removal of particulate matter (PM10) by air scrubbers at livestock facilities: Results of an on-farm monitoring program[J]. Transactions of the ASABE, 2012, 55(2): 689-698. DOI:10.13031/2013.41378 ( 0) |
| [22] |
郭建斌, 牛红林, 韩玉花, 等. 基于 PLC 的养殖场氨气生物氧化装置设计与试验[J]. 农业机械学报, 2017, 48(3): 310-316. DOI:10.6041/j.issn.1000-1298.2017.03.039 ( 0) |
| [23] |
李世才, 高子翔, 李森, 等. 畜禽舍空气净化器的设计[J]. 家畜生态学报, 2017, 38(1): 52-54. DOI:10.3969/j.issn.1673-1182.2017.01.010 ( 0) |
| [24] |
王昱, 吴鹏, 曾志雄, 等. 规模化猪舍废气复合净化系统设计与试验[J]. 农业机械学报, 2020, 51(4): 344-352. DOI:10.6041/j.issn.1000-1298.2020.04.039 ( 0) |
| [25] |
王卫红, 刘双红, 任永鑫, 等. 北方规模化猪场周围环境空气中PM10的监测分析[J]. 中国兽医杂志, 2015, 51(12): 95-97. DOI:10.3969/j.issn.0529-6005.2015.12.034 ( 0) |
| [26] |
梅玮, 祁巨中, 刘英玉, 等. 新疆北疆地区某集约化肉牛养殖场春季环境指标评价[J]. 中国畜牧兽医, 2015, 42(7): 1738-1746. DOI:10.16431/j.cnki.1671-7236.2015.07.018 ( 0) |
| [27] |
唐倩, 戴鹏远, 吴胜, 等. 猪舍颗粒物对肺泡巨噬细胞功能的影响[J]. 畜牧兽医学报, 2018, 49(10): 2092-2101. DOI:10.11843/j.issn.0366-6964.2018.10.005 ( 0) |
| [28] |
王昱, 牟剑, 曾志雄, 等. 猪舍废气净化系统填料结构多目标拓扑优化设计与试验[J]. 农业机械学报, 2021, 52(7): 329-334. DOI:10.6041/j.issn.1000-1298.2021.07.035 ( 0) |
| [29] |
RUIZ J, KAISER A S, LUCAS M. Experimental determination of drift and PM10 cooling tower emissions: Influence of components and operating conditions[J]. Environmental Pollution, 2017, 230: 422-431. DOI:10.1016/j.envpol.2017.06.073 ( 0) |
| [30] |
王颉. 试验设计与SPSS应用[M]. 北京: 化学工业出版社, 2006.
( 0) |
| [31] |
许稳, 刘学军, 孟令敏, 等. 不同养殖阶段猪舍氨气和颗粒物污染特征及其动态[J]. 农业环境科学学报, 2018, 37(6): 1248-1254. DOI:10.11654/jaes.2017-1440 ( 0) |
| [32] |
陆至羚, 柳建华, 张良, 等. 静电喷雾湿式金属填料复合过滤性能[J]. 燃烧科学与技术, 2015, 21(4): 340-345. ( 0) |
| [33] |
NIELSEN M T, LIVBJERG H, FOGH C L, et al. Formation and emission of fine particles from two coal-fired power plants[J]. Combustion Science and Technology, 2002, 174(2): 79-113. DOI:10.1080/714922606 ( 0) |
| [34] |
鲍静静, 刘杭, 潘京, 等. 石灰石−石膏法脱硫烟气PM2.5排放特性[J]. 热力发电, 2014, 43(10): 1-7. DOI:10.3969/j.issn.1002-3364.2014.10.001 ( 0) |
2023, Vol. 44



0)